満点商会
HOME
INFORMATION
PRODUCTS
CATALOG
COMPANY
CONTACT
PRODUCTS
HOME
製品紹介
AEDボックス
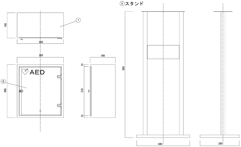
MDX-312NW
AEDボックス:スタンド型
MDX-312NW
AEDボックススタンド型
定価 ¥76,000(税込 ¥83,600)
ボディ/スチールt1.0(ポリッシュホワイト)
扉タイプ/アクリルクリアt4.0
サイズ/W400×H1350×D295
DXFダウンロード
PDFダウンロード
消火器ボックス
全埋込型扉付
全埋込型オープン
半埋込型扉付
半埋込型オープン
壁掛専用
壁掛型(屋内外対応)
据置・壁掛兼用型(屋内外対応)
据置型
据置型(屋内外対応)
取付ブラケット
ベル・フック
表示ステッカー
AEDボックス
備蓄ボックス
消火栓扉
消毒液ボックス
ポーチパネル
ガードパイプ
オートロック操作盤
既製・製作金物工事